NL Ferrata and Compass logo

536 West Barry AvenueChicago, IL 60657Price: $3,995,000

  • Price: $3,995,000
  • Est. Mortgage of $/month
  • 58 Days on Market
$
$
%
$/month over payments
Federal 30-year interest rate: 6.19% last updated on Dec 4, 2025
* All Figures are estimates. Check with your bank or proposed mortgage company for actual interest rates.
This product uses the FRED® API but is not endorsed or certified by the Federal Reserve Bank of St. Louis.
  • $3,995,000List Price
  • 5Bedrooms
  • 6Bathrooms
  • 1903Year Built
  • 10,580Square Feet

Ask A Question

Listing Tools

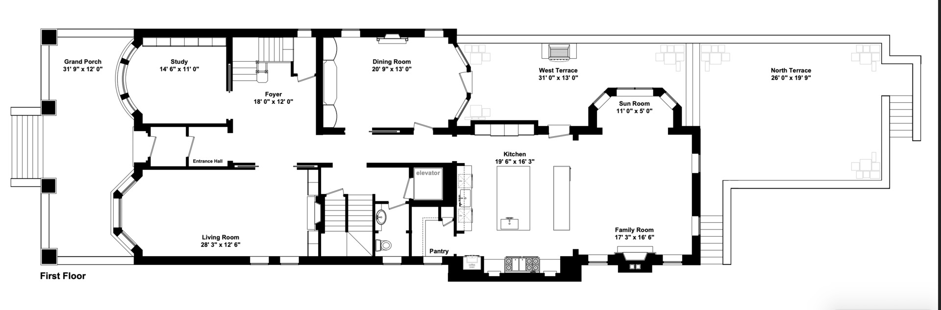
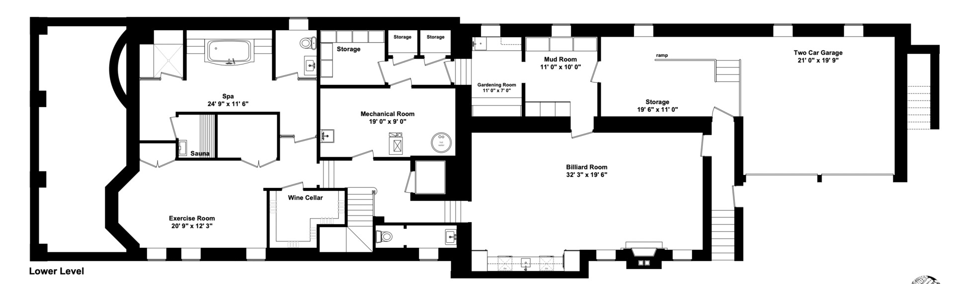
Luxury, elegance, and contemporary comfort are all present in this light-filled home set on an expansive 50' x 178' lot in this close-to-Lake Michigan, Lakeview location. This home showcases the design mastery of renowned Chicago architects and the renovation skills of a premier Chicago homebuilder. The property was extensively and meticulously restored and updated over a four- year time period and boasts all new electrical, plumbing and heating systems, high-end lighting, inside and outside stereo systems, heated floors, and an elevator which provides access to all four levels. The inspiring professional chef's kitchen was designed by De Giulio and features a walk-in pantry, premium Sub-Zero, Wolf, Miele, and Thermador appliances including wine storage, refrigerator drawers, two dishwashers, and a double oven range with a French cooktop. An automated appliance garage provides creative storage. An attached, spacious light-filled family room with a fireplace and a door to a spacious outdoor deck ensures that both everyday living and entertaining are remarkably easy. The nearby expansive dining room with original curved glass cabinetry doors and fireplace mantle as well as easy access to the outdoor deck adds to the entertainment value. There is completely custom built-in cabinetry on every level combined with special original cabinetry and architectural features such as beamed ceilings, restored intricate leadedglass windows, custom moldings, and a hand-carved staircase. The main level includes a mahogany bookcase in the library and an acacia-paneled living room as well as three gorgeous pocket doors. There are luxury touches such as one-of-a-kind granite in the kitchen, Nero Portoro and Calcutta Gold marble counters. Both the living room and dining room showcase early 20th century fireplaces with original tiles, while new wood-burning fireplaces occupy the basement theater, family room and Primary bedroom. The Primary suite offers exceptional closet space with beautiful built in custom cabinetry and a gorgeous stone bath and steam shower. There are two additional bedrooms, a bath, a laundry room, and a project/craft room with huge storage on the second floor. The top floor was likely a ballroom but has been reimagined as a large office or playroom with a guest suite and a room with incredible storage and cedar closets. The lower level provides a complete recreational and wellness experience which includes a temperature- controlled wine room, a spacious gym, a spa, another bath and a half, a mudroom and combined garden/workshop space. A combined theater-billiards room, more storage and countless other conveniences make the lower level a place to enjoy. The property's outdoor spaces are equally impressive, offering a true city retreat with three expansive terraces perfect for lounging, dining, or entertaining. The backyard oasis offers a secret garden with a unique water fountain and lush plantings designed by the master landscape designer Doug Hoerr. The landscaped grounds are maintained by an in-ground irrigation system. The attached 2.5-car garage is heated, and is complemented by a heated, private gated driveway that can accommodate up to 10 vehicles, an exceptional convenience. The terra cotta tiled roof was added during the renovation. The city's restaurants and retail establishments are within walking distance as is the magnificent Lincoln Park and Lake Michigan. Situated within the sought-after Nettlehorst Elementary district, this home is a rare blend of architectural pedigree, rich history, and modern infrastructure, offering refined living in one of the city's most desirable neighborhoods. For History Buffs:The land remained undeveloped for 24 years, changing hands among wealthy investors including Belden F. Culver and James A. Roosevelt. Although the parcel was acquired in 1891, it was not until 1900 that Julia Stayart purchased the property, hired Huehl & Schmid (designers of the Medina Temple) as architec

Property Details of 536 West Barry Avenue

Property Details

Interior Features

Exterior Features

Community

Map Location

Driving Directions

Listed by Emily Sachs Wong of @properties

Based on information submitted to MRED  as of December 7, 2025 . All data is obtained from various sources and has not been, and will not be, verified by broker or MRED.   All information should be independently reviewed and verified for accuracy.  Properties may or may not be listed by the office/agent presenting the information. NOTICE: Many homes contain recording devices, and buyers should be aware they may be recorded during a showing.

Hi there! How can we help you?

Contact us using the form below or give us a call.

Send Us A Message:

I agree to receive marketing and customer service calls and text messages from The NL Ferrata Team. To opt out, you can reply 'stop' at any time or click the unsubscribe link in the emails. Consent is not a condition of purchase. Msg/data rates may apply. Msg frequency varies. Privacy Policy.

Do not fill in this field:

This site is protected by reCAPTCHA and the Google Privacy Policy and Terms of Service apply.

Hi there! How can we help you?

Contact us using the form below or give us a call.

Send Us A Message:

Do not fill in this field:

This site is protected by reCAPTCHA and the Google Privacy Policy and Terms of Service apply.

Hi there! How can we help you?

Contact us using the form below or give us a call.

Send Us A Message:

Do not fill in this field:

This site is protected by reCAPTCHA and the Google Privacy Policy and Terms of Service apply.

Do not fill in this field:

This site is protected by reCAPTCHA and the Google Privacy Policy and Terms of Service apply.

Do not fill in this field:

This site is protected by reCAPTCHA and the Google Privacy Policy and Terms of Service apply.

Do not fill in this field:

This site is protected by reCAPTCHA and the Google Privacy Policy and Terms of Service apply.

$

Do not fill in this field:

This site is protected by reCAPTCHA and the Google Privacy Policy and Terms of Service apply.

ExploreMore Like This